Alapuzha Apartments,Kochi Apartments,Contracters In Kerala | Laskhya Projects







  COMPLETED PROJECTS


Yogiyanath

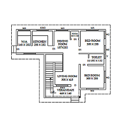
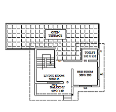
Yogiyanath's home is 1245 Sq.Ft premium class villa, at Alppuzha. Home is built with contempoary design . It gives you an excellent cross ventilation, natural lighting and space . Villa have 3 bedroom , living and kitchen .  

apartments builders in kerala ,
low budget apartments in kerala ,
cheapest apartments in kerala ,

GROUND FLOOR

apartments for sale in ernakulam kerala ,
sea facing apartments in kerala ,
3 bedroom apartment in kerala ,

FIRST FLOOR

SPECIFICATIONS

FOUNDATION

RCC M20 Column footing and plinth beam.

MASONRY AND PLASTERING

With good quality brick masonry 20 cm thick .

PLASTERING WORKS

With P sand.

FLOOR  FINISHING

With double charged vitrified tiles for entire area except toilets. Premium quality ceramic tiles for toilets. Granites for staircase, sitouts and kitchen counter.

JOINERY

Polished cheru teak door frame and shutter for front door and french window. For all internal doors Anjily frame, Mahagony style and HDF shutter. For toilets PVC Laminated doors.

PAINTING

Two coat emulsion over two coat putty for internal walls and ceilings, Exterior emulsion for external walls.

ELECTRICAL

Wiring with supreme quality PVC insulated copper cables, adequate light and fan points, 6A/16A plug points controlled by ELCB and MCB's with indipendent energy meter. Elegant modular switches of premium make. Provision for AC in all bed rooms.

SANITARY

Sanitary ware shall be premium quality snow white colour. At a bath room one normal EWC Closet, wash basin, shower, mixer tap, heater point and provision for exhaust fan.

 
 iso certified construction companies in kerala ,
low cost house construction companies in kerala ,
famous construction companies in kerala ,

Call Us : +91- 8281611381