Apartments in Alappuzha | Flats in Kochi,Alappuzha | Flats in Alapuzha ,Builders in Kochi,Alappuzha,Kerala | Lakshya Constructions & Interiors







Gireesh Pazhaveedu

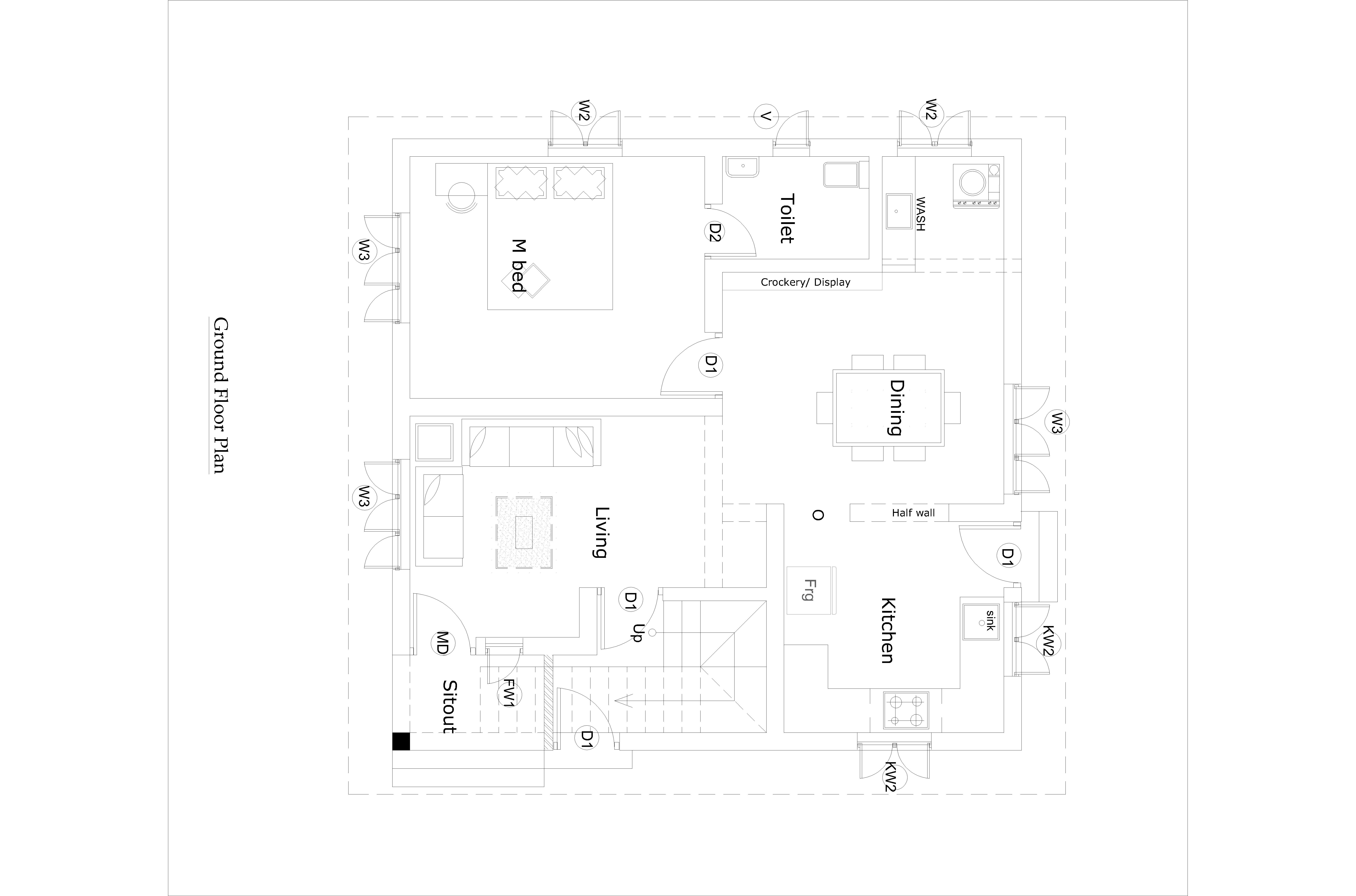
  Gireesh home is 1500 Sq.Ft budget villa, at Alappuzha. Home is built with simple contemporary design and a keen sence of functionality have gone into its planning. Villa have a sitout, living area, family living area, dining area, 3 bedrooms and attached toilets,kitchen.

home plan Alappuzha in style ,
House plan Alappuzha in  style
Home plans in Alappuzha ,

First Floor

3 bedroom home plans ,
3 bedroom home plans in Alappuzha  ,
3 bedroom home plans in kerala ,

Ground Floor

SPECIFICATIONS

MASONRY AND PLASTERING

With good quality Cement Solid Block masonry 20 cm thick.

PLASTERING WORKS

With P sand.

FLOOR  FINISHING

With double charged vitrified tiles for entire area except toilets. Premium quality ceramic tiles for toilets. Granites for staircase, sitouts and kitchen counter.

JOINERY

Polished cheru teak door frame and shutter for front door and french window. For all internal doors Anjily frame, Mahagony style and HDF shutter. For toilets PVC Laminated doors.

PAINTING

Two coat emulsion over two coat putty for internal walls and ceilings, Exterior emulsion for external walls.

ELECTRICAL

Wiring with supreme quality PVC insulated copper cables, adequate light and fan points, 6A/16A plug points controlled by ELCB and MCB's with indipendent energy meter. Elegant modular switches of premium make. Provision for AC in all bed rooms.

SANITARY

Sanitary ware shall be premium quality snow white colour. At a bath room one normal EWC Closet, wash basin, shower, mixer tap, heater point and provision for exhaust fan.

 
The largest collection of house plans and home plans on the web ,
Architectural drawing ,
Architectural drawing kerala ,

Call Us : +91- 8281611381